Eladó iroda/üzlethelyiség Budapest VII. ker 900 000 Euro

Leírás

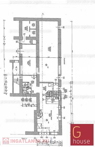
Erzsébetváros központi részén kulturális intézménynek, közösségi térnek alkalmas 351 nm-es, kétszintes ingatlan, - volt mozi - kiadó/eladó

Korábban mozi, színház, iskola működött benne. Több helyiséges, rendezvényteremnek, irodalmi kávézónak, kisebb kulturális központnak, cégközpontnak, bemutatóteremnek, színi tanodának, nyelviskolának is kiváló!

A tágas előcsarnokban kisebb kávézó kialakítható és akár terasz is igényelhető. Moziterem, (kb. 80-100 fős) kamaraterem, (kb. 50 fős) iroda, mosdók, kazánház találhatók a földszinten. Több utcai és egy udvarra nyíló kijárattal is rendelkezik. Eltérő igény esetén a beépített széksorok megszüntethetők.
Az emeleten hangosító szoba, irodának vagy klubszobának használható helyiség, szerver szoba helyezkedik el. Fűtés: cirkó.

Akadálymentesített bejárat, a termek is megközelíthetők kerekesszékkel, valamint mozgáskorlátozottak számára külön mosdó is biztosított.

Bérleti díj: 7020 EUR+áfa/hó, (20 euro/nm) kb. 2.850.000 Ft+áfa/hó. Kaució: 3 hó.
Vétel esetén: 900.000,- EUR+áfa, (kb. 361 M Ft+áfa) (fordított áfa)

Megközelítése kiváló: Blaha Lujza tér, Keleti pu., 7-es buszok, metrók, troli percek alatt elérhetők.

Iroda/üzlethelyiség részletei

Ár: 900 000 Euro
Méret: 351 négyzetméter
Azonosító: 11506120
Irodai azonosító: 14108
Cím: Erzsébetváros központi részén volt MOZI eladó
Jelleg: iroda
Helyiségek: 1

Egyéb jellemzők

  • Lift